- Enzmann & Fischer AG
University of Lucerne
Começando pela Estação Central de Lucerna, criada em 1985 pelo gabinete de arquitetura Ammann und Baumann e por Santiago Calatrava, seu funcionário na época, a cidade de Lucerna deu início a uma modernização radical do bairro que se estende para leste, desde a estação até ao Lago Lucerna. O Centro Cultural e de Congressos concebido por Jean Nouvel, com o seu amplo telhado sobreposto, situa-se à beira do lago desde o ano de 2000, e, imediatamente ao lado, encontra-se o recém-concluído edifício principal da Universidade.
Não se trata de um edifício novo, mas do antigo posto de correios que foi alvo de uma renovação e em torno do qual foi colocada uma invulgar fachada tridimensional. O exterior branco apresenta uma série de dobras intrincadas a partir do segundo andar até ao topo do edifício de cinco andares que dispõe de mais de 27 mil metros quadrados de superfície útil. A plasticidade das fachadas de ventilação traseira é reforçada pelas janelas panorâmicas, as quais se projetam 95 cm para o exterior e apresentam níveis e direções alternadas de inclinação. De acordo com os arquitectos, o design da fachada encerra referências históricas, como, por exemplo, aos painéis solares para satélites desenvolvidos por Koryo Miura nos anos 60, inspirados na arte japonesa do origami, ou à arte de Andreas Christen que criou grandes relevos em poliéster na mesma época. É possível encontrar ângulos semelhantes nas fachadas dos edifícios de Marcel Breuer em Flaine, uma estância de esqui em França. A composição das fachadas do edifício da universidade apresenta também algumas semelhanças com o Edifício Tacoma de Holabird e Roche (1887-1889), com as suas janelas salientes inclinadas.

Uma transformação total e impressionante de um antigo edifício de correios
Durante a fase de concurso, os arquitetos Enzmann & Fischer tinham previsto uma fachada composta por elementos de cortina em betão, todavia concluíram que estes eram demasiado caros e pesados para a estrutura. Hoje em dia, o antigo posto dos correios requalificado exibe inúmeras placas de suporte finas compostas por vidro reciclado polido com um revestimento triplo de poliuretano assente num aro de alumínio. A base desta solução é o sistema StoVerotec que os arquitetos descobriram durante a sua busca de alternativas mais leves ao betão. Trabalhando em estreita colaboração com a Sto AG e a GKP Fassadentechnik, os arquitetos Enzmann & Fischer tiveram a possibilidade de desenvolver o exterior artístico do edifício universitário, criando inclusive as soluções de janelas baseadas no sistema de portas e janelas Reynaers CS 86-HI. O sistema altamente isolado de três câmaras adequou-se perfeitamente ao complexo sistema de construção. Combinou-se um segmento revestido fixo com duas janelas móveis, com 4 x 2,30 metros e cerca de 600 kg no total, dispondo de um revestimento triplo que atinge um valor de isolamento de ≤1,0 w/m2K. Os suportes normalizados são claramente insuficientes para este peso, pelo que foi necessário conceber uma solução à medida. Com vista a obter uma aparência de janelas compostas totalmente por vidro, foi aplicado um revestimento de silicone em todos os caixilhos - o que implicou o desenvolvimento de um novo perfil adaptado anodizado SSG nas zonas seladas. Sem o recurso a componentes de construção de alto nível de desempenho na fachada, tais como os perfis de alumínio de isolamento superior em conjunto com uma gestão energética amiga do ambiente (bomba de aquecimento e energia de biomassa) não teria sido possível cumprir as normas Minergie, a norma suíça para construção eficiente em matéria de energia.
Foi necessária uma estreita colaboração entre todas as partes envolvidas para garantir uma precisão milimétrica na construção desta fachada, desde a ideia inicial até à instalação do sistema final. As reuniões regulares realizadas durante a fase de concurso passaram a ser mais frequentes após a escolha da empresa executante. Sobretudo durante a coordenação das dimensões da construção da fachada e das janelas, foi necessário um enorme esforço por parte de todos os envolvidos. Mas é este nível de empenho que é crucial para transformar uma ideia de design bem concebida numa realidade perfeitamente executada, num local de tamanha importância como este em Lucerna. A precisão de execução das superfícies e dos ângulos feitos à medida e a perfeição da instalação das janelas são simplesmente impressionantes. Together for Better.

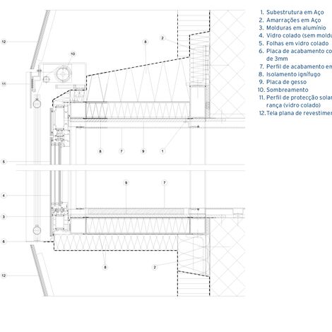
Sections window element
Project solution:
System: bespoke solution based on CS 86-HI
Project Description
- Bespoke solution based on CS 86-HI window and door system
- Highly insulated system (Uf up to 1.4 W/m²K) to reach the buildings Minergie label (Uw ≤ 1.0 W/m²K)
- 6500 m² building façade of which 2200 m² windows
- Window elements were prefabricated at the workshop including glazing
- Window elements were mounted without visible fixation
- 3dimensional look by using inclined window setting
- The distance between the wall and the most protruding façade parts is 950 millimeters
Window elements:
- 200 elements with combination of fixed & opening parts
- Glass weight up to 600 kg
- Max. 4000 x 2300 mm
- Possibility to easily replace glass
- WKII burglary proof
Opening parts
- 340 vents
- Weight up to 130 kg
- Inside opening turn
- Partial vents for SE (Smoke & Heat Evacuation) motorized
Glazing
- Triple glazing
- SSG: profiles were anodized to guarantee quality of adhesion

A-A’: vertical section opening and fixed elements

B-B’: horizontal section opening element
Parceiros envolvidos
Architect
- Enzmann & Fischer AG
Fabricator
- Surber Metallbau AG
Fotógrafo
- Bruno Rubatscher
- Dany Schulthess
Outros parceiros
- Financial department of canton Lucerne (Rafaela Fu (Investors)
- Ursula Baus (Authors)