Las Palmeras
Desenhada pelo arquiteto Valentín de Madariaga, a Casa Las Palmeras combina elementos tradicionais e modernidade. A fachada é tão sólida e intrigante como as casas mouriscas de "Al-Andalus" (território histórico do sul de Espanha, quando pertencia ao império islâmico), enquanto a construção e geometria irradiam contemporaneidade.
"Há algum tempo atrás, um cliente inglês apresentou-me o feng shui, uma forma de arte chinesa que eu tento aplicar à paisagem espanhola", explica Valentín de Madariaga. "Para mim, feng shui é sobre a relação entre o ambiente e a luz solar, bem como a criação de paz e harmonia.". O mais decisivo na criação da Casa Las Palmeras foi o lote de terreno. Madariaga explica: " O terreno é que determinou onde posicionar as seis colunas diferentes, quais seriam as proporções e onde colocar os elementos do jardim.".
"As palmeiras ao lado da piscina tornam nadar mais agradável e o bamboo em torno do jardim cria um ambiente mais íntimo.". Tal como o arquiteto, o residente da Casa Las Palmeras é um amante ávido de arte contemporânea. A "espinha dorsal" da residência, em conjunto com a estrutura e as suas várias funções, é um longo corredor que é usado para exibir a coleção pessoal de arte do proprietário. Luz indireta ilumina as pinturas ao longo do corredor, que liga o ginásio às áreas de jantar e de convívio, estendendo-se para as áreas de serviço e quartos de pais e filhos. No total, a residência dispõe de 1.200 metros quadrados. Os vários quartos estão todos orientados para os terraços cobertos, que se ligam ao relvado.

A transição entre o interior e o exterior foi criada utilizando o sistema de correr Hi-Finity
Transição suave
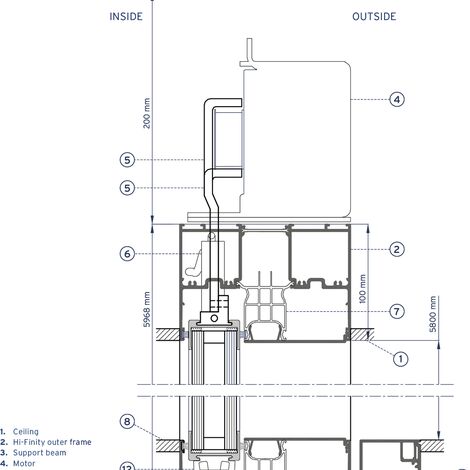
Nesta região, as pessoas passam uma grande parte do seu tempo ao ar livre. As áreas ao ar livre que rodeiam o jardim e as galerias sombreadas podem ser ainda mais importantes do que os espaços interiores. A transição entre o interior e o exterior foi criada utilizando o sistema de correr Hi-Finity. As portas de correr do ginásio foram projetados especificamente para este projeto, em conjunto com o parceiro Grupo Moncada. Como Madariaga relata: "Foi um enorme desafio para posicioná-las durante a construção. Felizmente, fomos rapidamente capazes de substituir um dos quatro elementos do vidro, que partiu devido a uma forte rajada de vento. A Reynaers equipou esses elementos com um mecanismo motorizado para abrir e fechar, visto que pela suas dimensões os painéis eram demasiados pesados!". Estas portas especialmente concebidas têm 5,9 metros de altura e pesam 285 kg. Produzimos e posicionámos a abertura de substituição em uma semana e meia", diz o fabricante José Miguel Moncada do Grupo Moncada.

Toda a fachada é equipada com elementos de correr Hi-finity para uma vista máxima do jardim
"Em qualquer caso, o ritmo de construção obrigou-nos a terminar em tempo recorde. Todo o projeto foi concluído em nove meses." A Hi-Finity, montada pelo Grupo Moncada, desempenha um papel fundamental em relação ao meio ambiente. É por isso que as faixas foram inseridas com profundidade no chão em pontos específicos, com os perfis principais e secundários integrados nas paredes. A única coisa que permanece visível é a junta de união dos perfis Hi-Finity minimalistas.
Visto do exterior, o vidro funciona como espelhos que refletem o ambiente. Emoldurado pelos perfis brancos da residência, a imagem refletida dos terraços e da vegetação cria quase uma nova pintura moderna: o último recurso na coleção do proprietário.
As portas de correr de grande porte Hi-Finity fornecem pouco mais do que uma separação finíssima entre o interior e o exterior
José Miguel Moncada nasceu em 1970 em San Roque e é líder do Grupo Moncada, uma empresa familiar fundada pelo seu pai há quase sessenta anos. José Miguel Moncada é engenheiro elétrico que também possui mestrado em administração de empresas. Expandiu o negócio do seu foco inicial, portas e caixilhos de madeira, para uma maior versatilidade para servir o setor da construção. A equipa experiente introduz continuamente as novas tecnologias na sua fábrica, equipada com máquinas de ponta. Hoje, produzem móveis bem como fachadas complexas e janelas em alumínio, sendo este último exclusivamente em parceria com a Reynaers. "A experiência e a incorporação de produtos inovadores são fundamentais para o sucesso dos nossos projetos", afirma.
Valentín de Madariaga nasceu em 1960 em Sevilha. Depois de estudar arquitetura na Escola Técnica Superior de Madrid, iniciou em 1987 uma parceria com Ernesto Merello, onde combinaram arquitetura tradicional e moderna. De Madariaga especializou-se rapidamente em casas destacadas, tal como a "tipologia de fazenda" representativo da sua região natal, a Andaluzia. Para além de cerca de 150 casas particulares, criou também clubes de golfe, restaurantes e piscinas. Restaurou também patrimónios históricos, tal como igrejas. "O ambiente é um fator decisivo no desenvolvimento da arquitetura, que se traduz em proporções, materiais, temperatura, luz e som, e depois em experiências", diz De Madariaga.

Horizontal section Hi-Finity bespoke meeting section
Project solution
System: Hi-Finity bespoke solution
Project description:
- External motor mounted on top of frame (20 cm required built-in-depth)
- Special connection from motor to the moving parts of the vents
- Bespoke middle section: double reinforcement profile to support high loads
- Extensive research on the strength and sizes
Element:
- Four vent Hi-Finity sliding door with centre opening
- Dimensions 5.9 x 1.25 m per vent
- Weight per vent: 285 kg
Glazing:
- Double laminated glazing: 44.1/20/44.1

Vertical section Hi-Finity bespoke solution
Sistemas Reynaers utilizados
Parceiros envolvidos
Fabricator
- Moncada Aluminium
Fotógrafo
- Claudio Curia
Outros parceiros
- Sander Laudy (Authors)