Skip to main content
  • ConceptWall 50 Fachadas - Bank Yapi Kredi Bank Academy localizado em Istanbul, Turquia
  • ConceptWall 50 Fachadas - Bank Yapi Kredi Bank Academy localizado em Istanbul, Turquia
  • ConceptWall 50 Fachadas - Bank Yapi Kredi Bank Academy localizado em Istanbul, Turquia
  • ConceptWall 50 Fachadas - Bank Yapi Kredi Bank Academy localizado em Istanbul, Turquia
  • Teget Architecture

Yapi Kredi Bank Academy

Istanbul - Turquia - 2010

O edifício Yapi Kredi Bank Academy trata-se de uma extensão do complexo existente situado junto a Istambul. O complexo bancário com 65.000 m² foi desenhado por John McAslan em 1998. É formado por dez volumes cúbicos agrupados num padrão de rede que cria um ‘campus’ para os 2500 empregados. Os volumes cúbicos incluem pátios ao centro ligados entre si por ruas que funcionam como áreas comuns e de circulação entre os diversos ‘cubos’. A estrutura existente retrata um ambiente rígido mas confortável com a sua textura de betão exposta e fachadas de vidro escurecido.

Quando a administração do banco pensou em criar um novo espaço para os serviços de formação do novo pessoal, abordou o gabinete Teget Architecture com instruções claras: um edifício com muitas salas de aula, um auditório e uma cantina. De facto, o desenho de McAslan podia ter sido expandido através da simples adição dos mesmos volumes cúbicos à estrutura existente. No entanto, Teget decidiu diferenciar as novas estruturas do padrão já existente. A nova extensão da academia é constituída por dois volumosos ‘blocos’ de cobre que se salientam a 45 graus a partir da esquina do complexo. Estes dois elementos incluem as salas de aula e o espaço existente entre eles liga diretamente a nova estrutura à forma já existente. Este espaço central funciona como uma nova rua, com um ângulo oblíquo que faz a continuação natural do padrão de ruas do campus existente. Este espaço interior cómodo constitui o principal espaço de circulação e de socialização para todo o complexo.

ConceptWall 50 Fachadas - Bank Yapi Kredi Bank Academy localizado em Istanbul, Turquia

O novo bloco da academia é constituído por duas espessas barras de cobre que se salientam do complexo num ângulo de 45 graus

O espaço possui poços de luz em forma de vulcão por cima do auditório, uma grande escadaria em madeira que nos leva até à cantina e que também é utilizada como pequeno auditório informal, e um poço de desejos sob as escadas. Esta zona, com o seu piso em madeira, funciona como ponto de encontro para os estudantes. Todos estes elementos criam um ambiente vibrante e simultaneamente tranquilo, ideal para a socialização durante os intervalos. A escolha do material, bem como a rejeição de continuar o padrão existente, torna o novo edifício extremamente chamativo para quem se aproxima do complexo. Os volumes revestidos a cobre ‘balançam’ sobre a topografia acidentada, acentuando ainda mais a atmosfera monumental do novo edifício.

Os blocos das salas de aula possuem sistemas de fachada dupla enquanto o exterior é revestido por placas de cobre fixadas a uma armação de andaimes permanente. Ao revestir a fachada exterior, os arquitetos optaram por alterar a rotação dos painéis, criando assim uma fachada ‘salpicada’. O revestimento exterior em cobre controla a luz exterior excessiva nas salas de aula. Graças a estas placas perfuradas, o edifício é totalmente opaco durante o dia, mas à noite transformase numa espécie de lanterna. Para realçar a monumentalidade volumétrica dos dois elementos revestidos a cobre, a fachada do volume central foi retrocedida e revestida com almofadas transparentes de EFTE que permitem a entrada indireta da luz solar no edifício. Neste volume central, os corredores da fachada interior têm faixas removíveis de pano com as cores da

academia.

ConceptWall 50 Fachadas - Bank Yapi Kredi Bank Academy localizado em Istanbul, Turquia

Cantina com janela panorâmica na base do edifício em betão

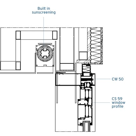
Os sistemas Reynaers foram utilizados em todo o edifício. O sistema de fachada CW 50 foi utilizado para as fachadas externas por trás do revestimento em cobre e o sistema de fachada grampeada CW 50-SC foi utilizado nas zonas de passagem que ligam o novo edifício à estrutura existente. Para as fachadas interiores e portas das salas de aula, foram utilizadas portas e janelas do sistema Reynaers CS 59. As portas de segurança das escadas de incêndio foram construídas com o sistema CS 77 da Reynaers. O desenho do novo edifício da Academia YKB foi realizado em seis meses e a sua construção foi concluída em dez meses. Em 2009 o projeto recebeu o prémio ArchDaily’s Building of the Year na categoria de edifícios educacionais. Para além disso, Ertug Ucar, um dos principais arquitetos da Teget, ganhou o prémio Arkitera Young Architect em 2010.

ConceptWall 50 Fachadas - Bank Yapi Kredi Bank Academy localizado em Istanbul, Turquia

CW 50 façade with integrated sun blinds

Sistemas Reynaers utilizados

Parceiros envolvidos

Architect

  • Teget Architecture

Fabricator

  • Nasakoma

Fotógrafo

  • Alternatif Iletisim
  • Cemal Emden

Outros parceiros

  • Ark Ínsaat (General contractors)
  • YKB (Investors)
  • Ömer Kanipak (Authors)