Skip to main content
  • ConceptWall 86 Fachadas - Office building Höfdatorg localizado em Reykjavik, Islândia
  • ConceptWall 86 Fachadas - Office building Höfdatorg localizado em Reykjavik, Islândia
  • ConceptWall 86 Fachadas - Office building Höfdatorg localizado em Reykjavik, Islândia
  • ConceptWall 86 Fachadas - Office building Höfdatorg localizado em Reykjavik, Islândia
  • LWW Architekten
  • PK -Arkitektar

Höfdatorg

Reykjavik - Islândia - 2009

O segundo edifício mais alto de Reykjavik faz parte do ambicioso projeto destinado a transformar o clima agreste em elegância e otimismo através de uma arquitetura radiante. A arquitetura contrasta, não apenas com as condições meteorológicas da Islândia, mas também com ambiente económico em que a torre é instalada. Os planos foram desenhados nos anos de prosperidade, mas a construção aconteceu quando a crise económica se tornara evidente.

A torre faz parte de Höfðatorg, o complexo  a poucos metros de Höfði, a moradia onde Ronald Reagan e Michael Gorbachev se encontraram em 1986 para discutir o desarmamento nuclear. Com dezanove andares e dezassete metros de altura este é um dos seis edifícios mais altos em Höfðatorg, que é baseado no plano principal da firma entre PK-Arkitektar e LWW Architekten. O escritório Islandês de PK Arkitektar é responsável pela execução arquitetónica do projeto. As letras P e K são as iniciais do fundador do escritório, Pálmar Kristmundsson. Até agora só dois dos seis volumes foram construídos, acolhendo um espaço para viver, trabalhar e relaxar.  Com o seu ritmo irregular de superfícies obliquas em vez de fachadas lisas, PK Arkitektar tratou de criar vida e movimento. Para além da complexa realização técnica desta fachada, uma das questões mais importantes é como ir ao encontro dos requisitos de conforto da Islândia, tendo em conta as condições climatéricas, o vento e as temperaturas baixas. O arquiteto queria um sistema específico com vidros pesados no nível térreo. Para a torre o arquiteto queria uma estrutura selada de vidro, ambos fixos e amovíveis, integrados no  sistema. Uma solução personalizada baseada na fachada CW 86-EF foi selecionada para superar o mau tempo que se adivinhava durante a instalação e permitir uma instalação o mais breve possível.

ConceptWall 86 Fachadas - Office building Höfdatorg localizado em Reykjavik, Islândia

Horizonte de Reiquiavique

ConceptWall 86 Fachadas - Office building Höfdatorg localizado em Reykjavik, Islândia

Vista interior; perfis CW 86-EF

Para as inclinações dos vidros, a Reynaers desenvolveu uma nova divisória baseada no sistema de CW 86-EF. Dentro da estrutura, uma estrutura de vidro fixo ou suspensa suporta o vidro que foi instalado. Todas as janelas suspensas são motorizadas e o motor está integrado dentro do sistema. Para esta solução, a Reynaers desenvolveu uma rutura térmica com 250 mm com travessas horizontais e verticais para suportar as estruturas de vidro e garantir a resistência à carga do vento expectável com velocidades de 280 quilómetros por hora. As instalações técnicas do Reynaers Campus permitiram conjugar os desejos estéticos do arquiteto com os requisitos técnicos e energéticos. O resultado é uma torre como não há nenhuma igual na Islândia.  Durante a crise Höfðatorg foi visto como um símbolo de desastre. Agora, à medida que a economia recupera gradualmente, é possível olhar a torre com mais otimismo. Esta arquitetura pode ser vista com uma vitória gloriosa aos muitos desafios que encontrou. 

ConceptWall 86 Fachadas - Office building Höfdatorg localizado em Reykjavik, Islândia

Foram criados elementos especiais para os cantos agudos e obtusos da torre

Para a fachada, a Reynaers desenvolveu quatro sistemas diferentes: elementos completamente fixos com vidro vertical; elementos com vidro vertical e janelas suspensas sobre a largura total do elemento, elementos com partes de vidro inclinadas, ambos fixos ou com janelas suspensas; e os elementos do canto com 64 e 116 graus. Para os cantos afiados e obtusos da torre, foram fabricados elementos especiais com efeitos T e perfis verticais para alcançar o efeito visual desejado. 

ConceptWall 86 Fachadas - Office building Höfdatorg localizado em Reykjavik, Islândia

Desenhando; Elemento unitizado

ConceptWall 86 Fachadas - Office building Höfdatorg localizado em Reykjavik, Islândia

a - Parte horizontal de vidro inclinado

ConceptWall 86 Fachadas - Office building Höfdatorg localizado em Reykjavik, Islândia

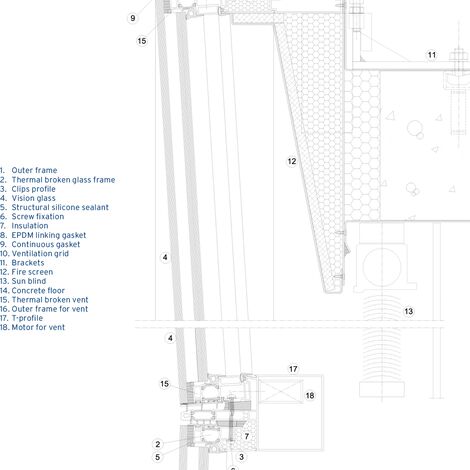
b-b’: Secção vertical com partes de vidro inclinado

Sistemas Reynaers utilizados

Parceiros envolvidos

Architect

  • LWW Architekten
  • PK -Arkitektar

Fabricator

  • Gluggar in cooperation with ASF

Fotógrafo

  • Rafael Pinho

Outros parceiros

  • Eykt ehf., Reykjavik (General contractors)
  • Hans Ibelings (Authors)